3610L直行程电子式执行器

1.1 产品型号意义
注:※前的项目选型时必须标注,※后的项目为选择项目,不要时可省略,但顺序不可颠倒。
表1.1
|
|
|
|
1.3 主要技术参数
表1.2
|
项 目 名 称 |
参 数 内 容 |
|||
|
控制机构 |
输入信号 |
4-20mAd·c或1-5Vd·c |
||
|
输出信号 |
4-20mAd·c(负荷电阻500Ω以下) |
|||
|
死区 |
0.8-1.0%可调到0.4% |
|||
|
零点调整 |
25% |
|||
|
量程调节 |
20-100% |
|||
|
基本误差、回差 |
1.0% |
|||
|
控制限位、开关 |
开侧、闭侧 |
|||
|
开度检测 |
精密导电塑料电位器 |
|||
|
动力 |
电源 |
220Va·c -15%~+10% 50Hz |
||
|
驱动电机 |
AC 可逆单相齿轮减速电机 |
|||
|
整机功率 |
A 型 |
B 型 |
C 型 |
|
|
50VA |
150VA |
220VA |
||
|
附属机构 |
过载保护单元 |
A、B型任选,C型必备 |
||
|
空间加热器 |
选择件,但防爆型不安装 |
|||
|
手动机构 |
便携式手动曲柄 |
|||
|
安 条 件 |
环境温度 |
普通无加热器-10℃~+60℃ |
||
|
普通有加热器-35℃~+60℃ |
||||
|
防爆型-10℃~+60℃ |
||||
|
允许振动 |
1.5G以下 |
|||
|
相对湿度 |
普通型95%以下,防爆型45-85% |
|||
|
环境气体 |
无腐蚀性气体 |
|||
|
外部配线 |
信号线屏蔽并与电源线分开 |
|||
|
接线口 |
普通型A、B、C型2-G1/2" |
|||
|
防爆型2-G3/4" |
||||
|
保护等级 |
IP55 |
|||
|
防爆等级 |
ExdⅡBT4 |
|||
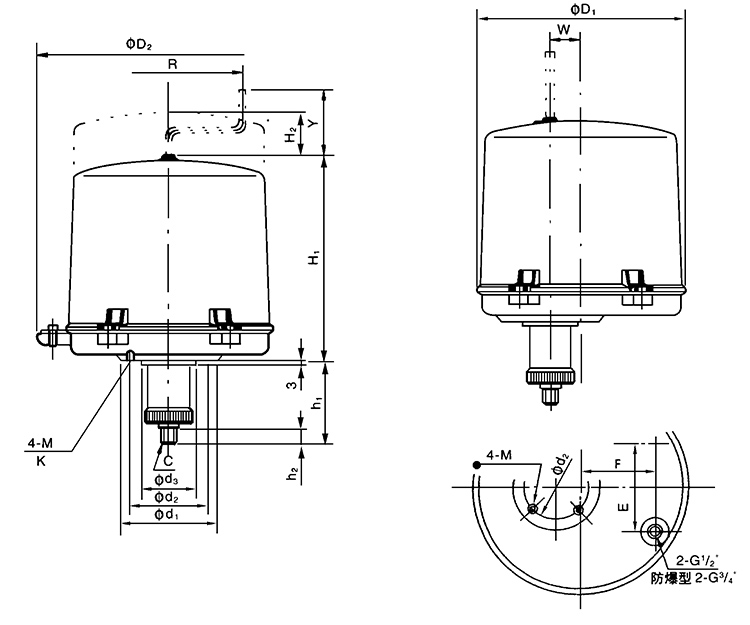
1.4 安装尺寸
表1.3
|
型 号 |
D1 |
D2 |
H1 |
H2 |
h1 |
h2 |
d1 |
d2 |
d3(f8) |
C |
M |
W |
K |
Y |
R |
E |
F |
重量(kg) |
|
361LSA |
225 |
260 |
200 |
205 |
78 |
18 |
90 |
70 |
55 |
M14×1.5 |
M8 |
28 |
15 |
87 |
φ160 |
85 |
75 |
8 |
|
361LXA |
240 |
280 |
283 |
230 |
78 |
18 |
90 |
70 |
55 |
M14×1.5 |
M8 |
28 |
15 |
87 |
φ160 |
85 |
75 |
15 |
|
361LSB |
255 |
290 |
280 |
260 |
125 |
31 |
125 |
102 |
70 |
M18×1.5 |
M10 |
45 |
18 |
90 |
φ320 |
85 |
91 |
14 |
|
361LXB |
270 |
310 |
353 |
280 |
125 |
31 |
125 |
102 |
70 |
M18×1.5 |
M10 |
45 |
18 |
90 |
φ320 |
85 |
91 |
25 |
|
361LSC-65/99 |
310 |
360 |
415 |
380 |
175 |
31 |
150 |
125 |
85 |
M22×1.5 |
M12 |
60 |
24 |
90 |
φ320 |
85 |
120 |
52 |
|
361LXC-65/99 |
326 |
368 |
475 |
380 |
175 |
31 |
150 |
125 |
85 |
M22×1.5 |
M12 |
60 |
24 |
90 |
φ320 |
80 |
120 |
54 |
|
361LSC-160 |
310 |
360 |
415 |
380 |
271 |
35 |
150 |
125 |
85 |
M24×3 |
M12 |
60 |
24 |
90 |
φ320 |
85 |
120 |
58 |
|
361LXC-160 |
326 |
368 |
475 |
380 |
271 |
35 |
150 |
125 |
85 |
M24×3 |
M12 |
60 |
24 |
90 |
φ320 |
80 |
120 |
60 |
注:表中h1是输出轴位于下端时的尺寸,H2是拆卸护罩所必须的尺寸,R是手动曲柄操作所必须的尺寸,在设计安装时应予以考虑。